¡Siguenos!

Ficha de Casa

Casa ID.5808 - Venta Casa 2 dormitorios Tradicional a estrenar Pinares


Venta U$S 210,000

Pinares / Punta del Este / Maldonado


  • Sup. 300 m2
  • 2 Dormitorios
  • 2 Baños
Descripción


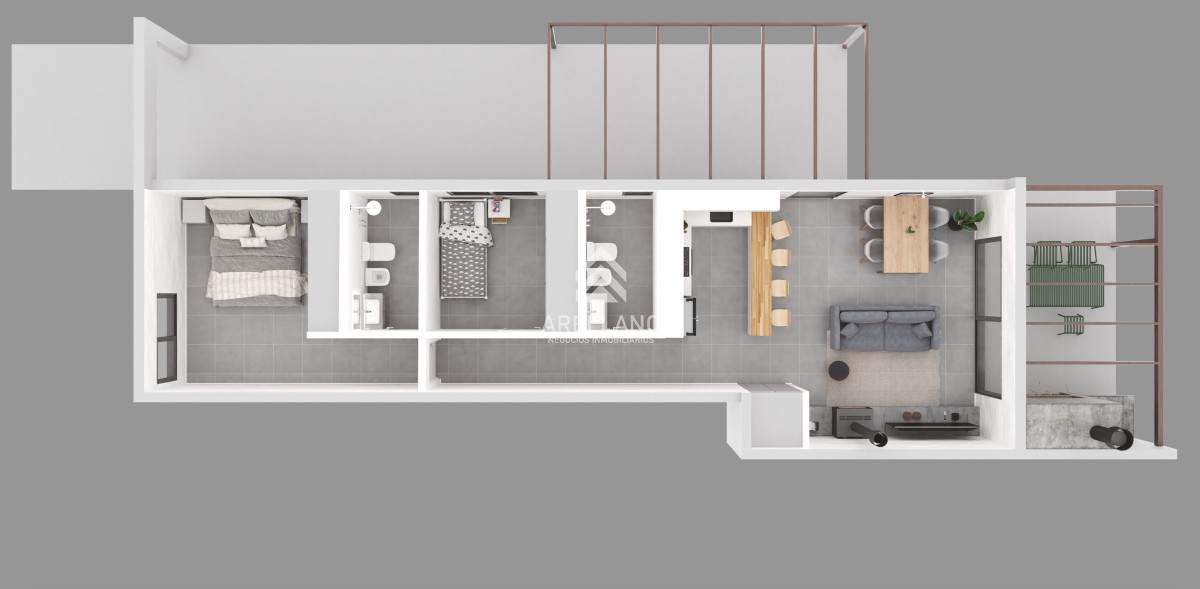
Descubre esta encantadora casa en Pinares, Punta del Este, un lugar donde la tranquilidad se encuentra con la cercanía del océano. A tan solo 600 metros de la playa, esta propiedad es ideal para disfrutar de momentos inolvidables en familia o con amigos.

Con una distribución pensada para el confort, la casa cuenta con 2 dormitorios, 2 baños y 1 suites, ofreciendo capacidad para 4 personas. Su amplia cocina se integra perfectamente con el living y el comedor, creando un ambiente acogedor y funcional para compartir.

El terreno de 300 m² alberga 80 m² de construcción, brindando espacio suficiente para disfrutar del aire libre y la naturaleza que rodea esta hermosa zona.

Características
  • Barrio  Pinares
  • Vista  Al Bosque
  • Orientacion  NorOeste
  • Distancia al Mar  600
  • Terreno m2  300
  • Edificado m2  80
  • Dormitorios  2
  • Baños  2
  • Suites  1
  • Cocina  Amplia
  • Living  Si
  • Comedor  Si
  • Living Comedor  Si
  • Comedor Diario  Si
  • Capacidad Personas  4
  • Cantidad Camas  0
  • Lavadero  Si
  • Estufa Leña  Si
  • Cochera  Cochera
  • Estacionamiento  Estacionamiento
  • Cantidad de Plantas  1
  • Propiedad Horizonal  Si
  • Parrillero  Barbacoa
  • Tipo de Techo  Isopanel
  • Muebles  No
Equipamiento
  • Anafe
  • Placard en cocina
  • Campana
  • Horno
Video
Ubicación
¡Envianos un Mensaje!